

银龙轩住宅小区(商业楼一)拟调整方案

银龙轩住宅小区(商业楼一)原审批方案

银龙轩住宅小区(商业楼二)拟调整方案

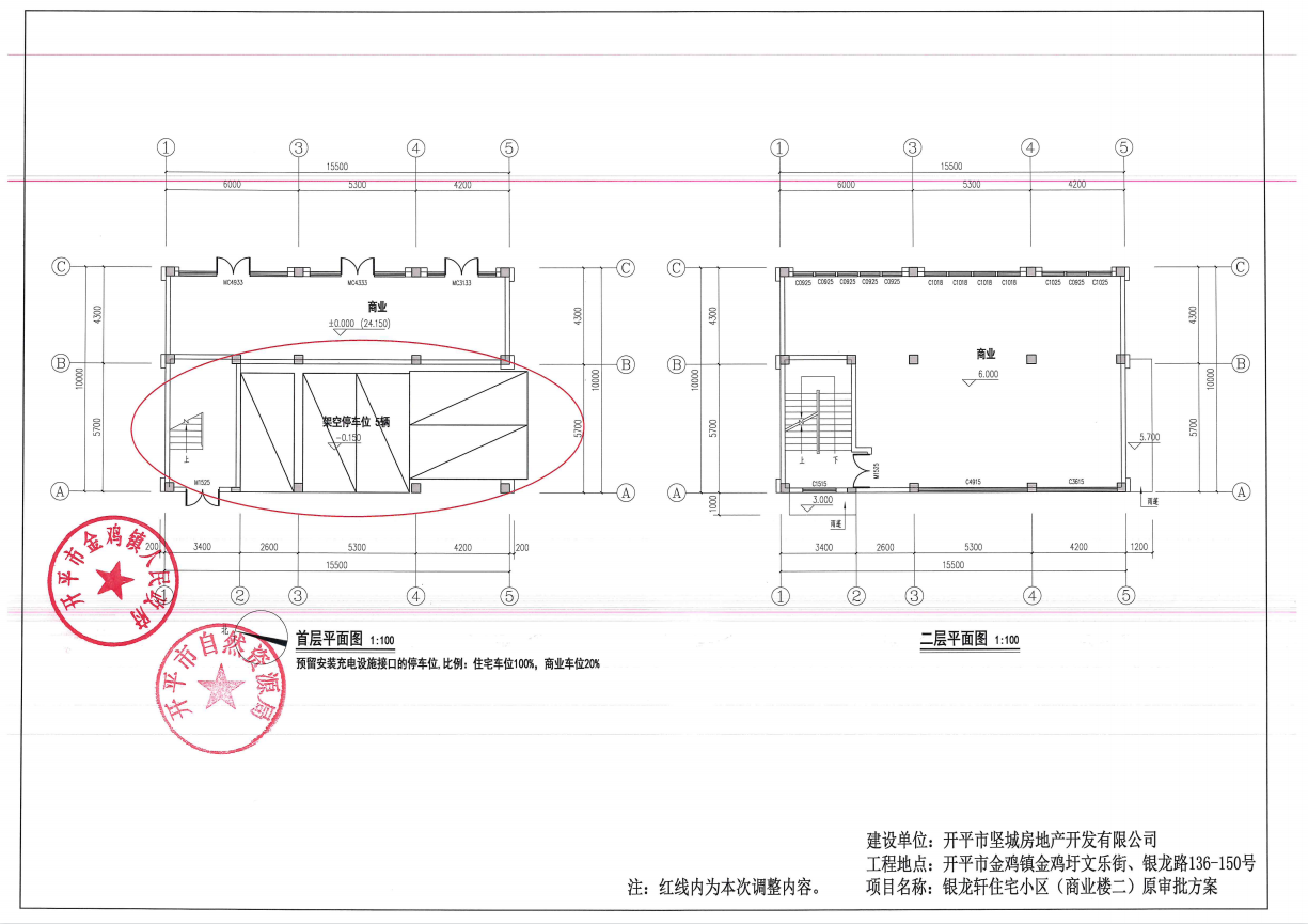
银龙轩住宅小区(商业楼二)原审批方案
| 索引号: | 11440783007082512X/2022-00243 | 分类: | |
| 发布机构: | 江门开平市金鸡镇人民政府 | 成文日期: | 2022-11-25 |
| 名称: | 关于开平市金鸡镇金鸡圩文乐街、银龙路136-150号银龙轩住宅小区项目报建图调整的公示 | ||
| 文号: | 发布日期: | 2022-11-25 | |
| 主题词: | |||


银龙轩住宅小区(商业楼一)拟调整方案

银龙轩住宅小区(商业楼一)原审批方案

银龙轩住宅小区(商业楼二)拟调整方案

银龙轩住宅小区(商业楼二)原审批方案