• 开平市人民政府门户网站
  •   
  • 关注我们:
    • 搜索
今天是2019年4月13日 星期六欢迎进入开平市自然资源局!
您当前的位置:首页 > 开平市自然资源局 > 规划公告
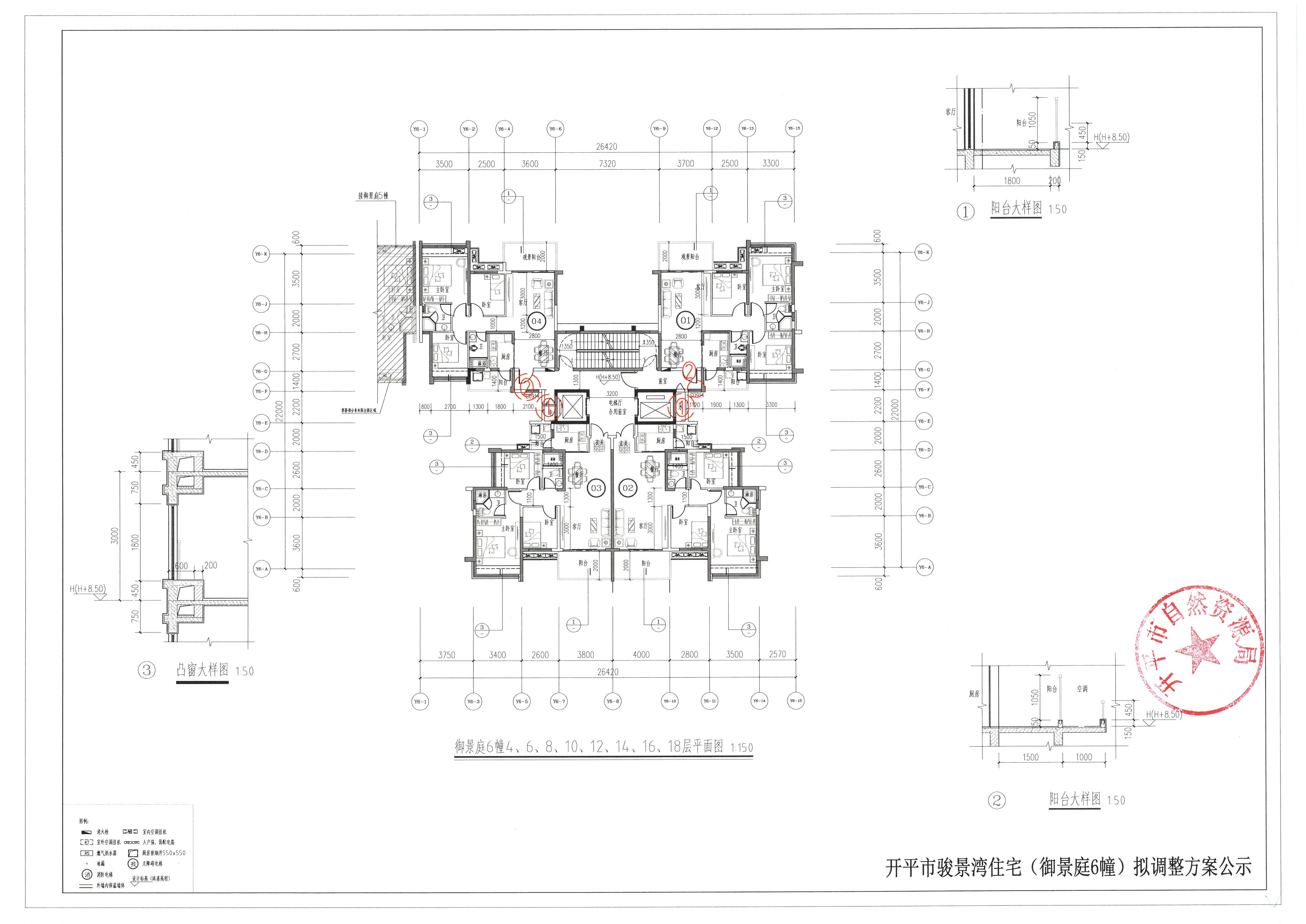
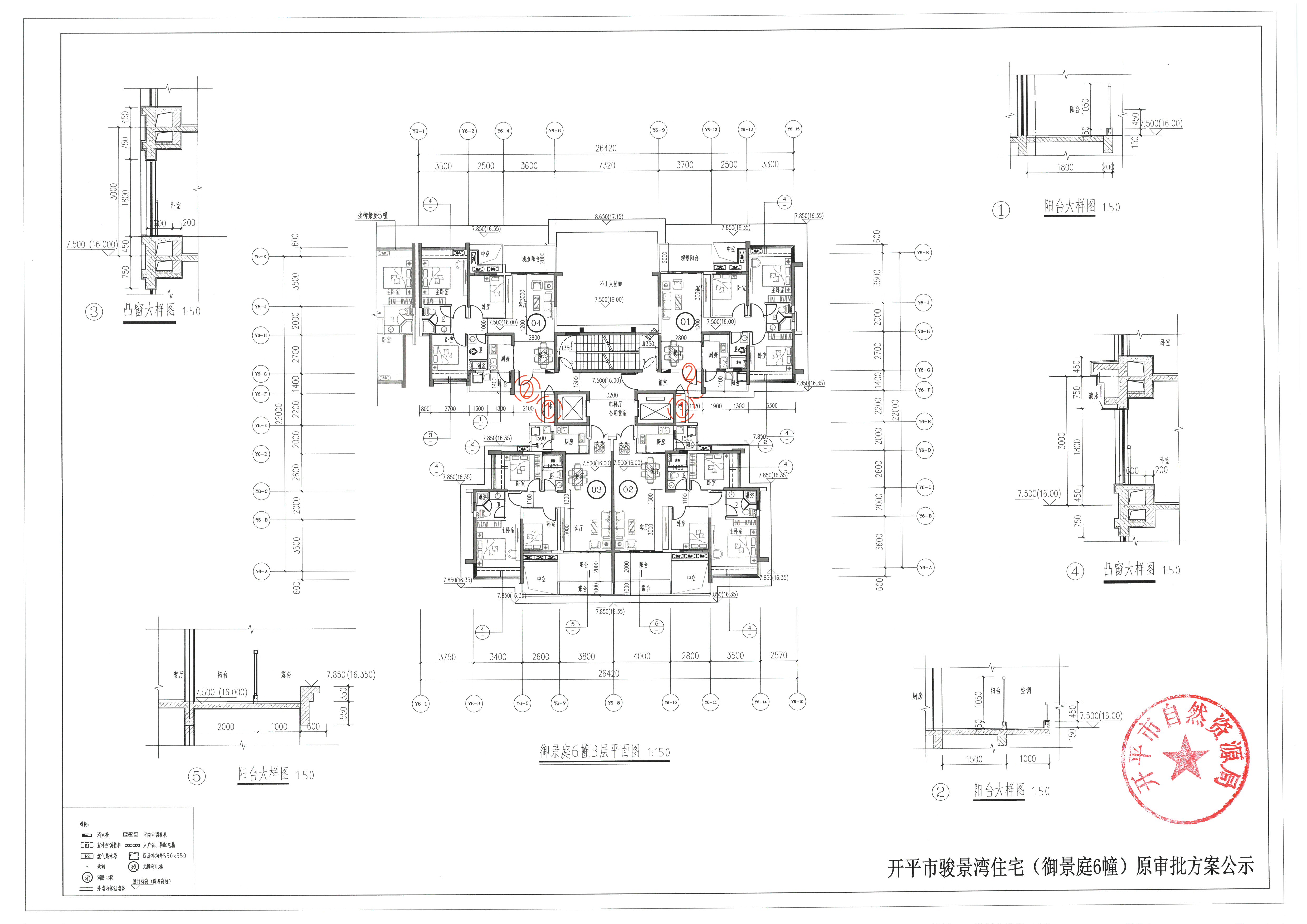
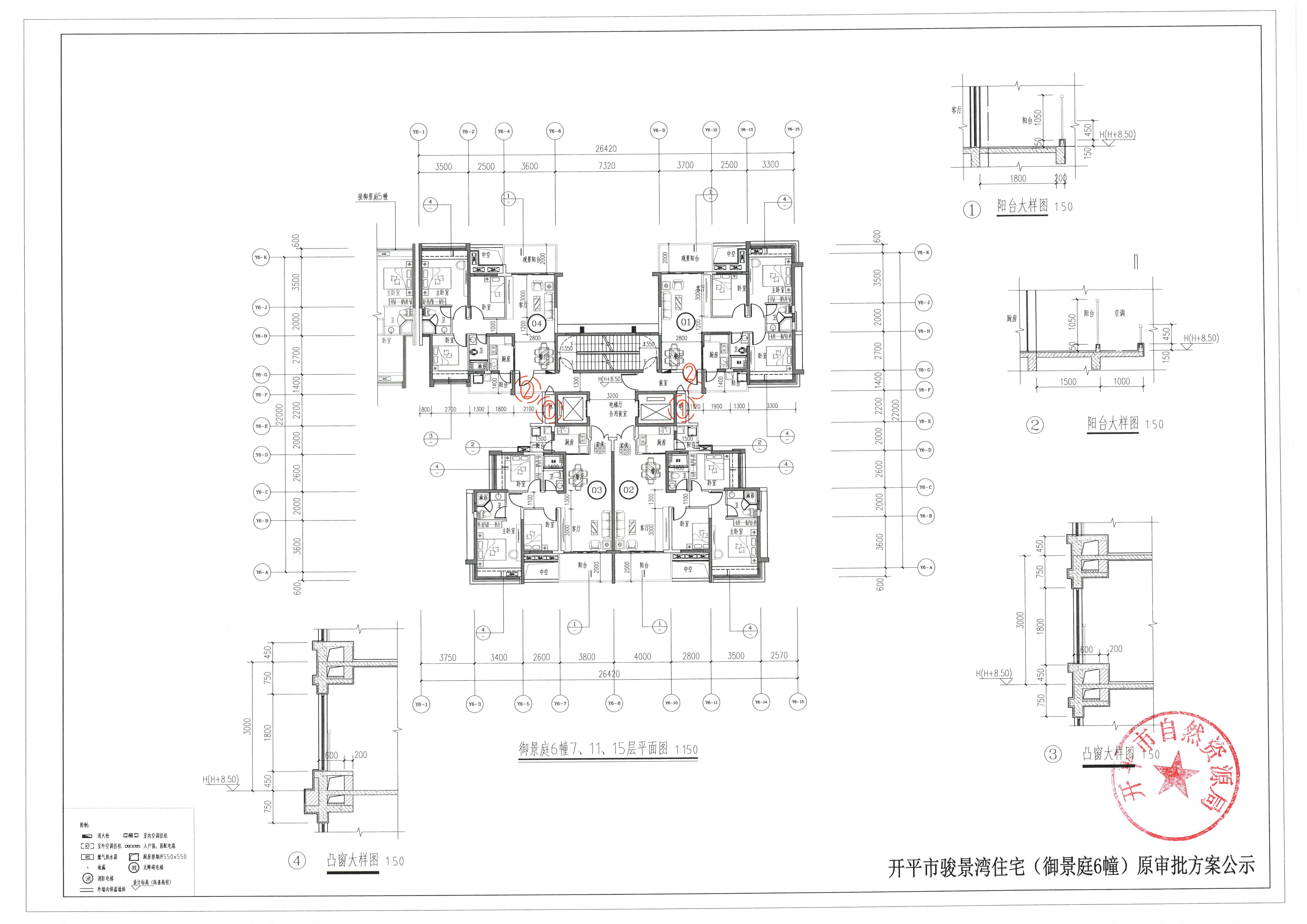
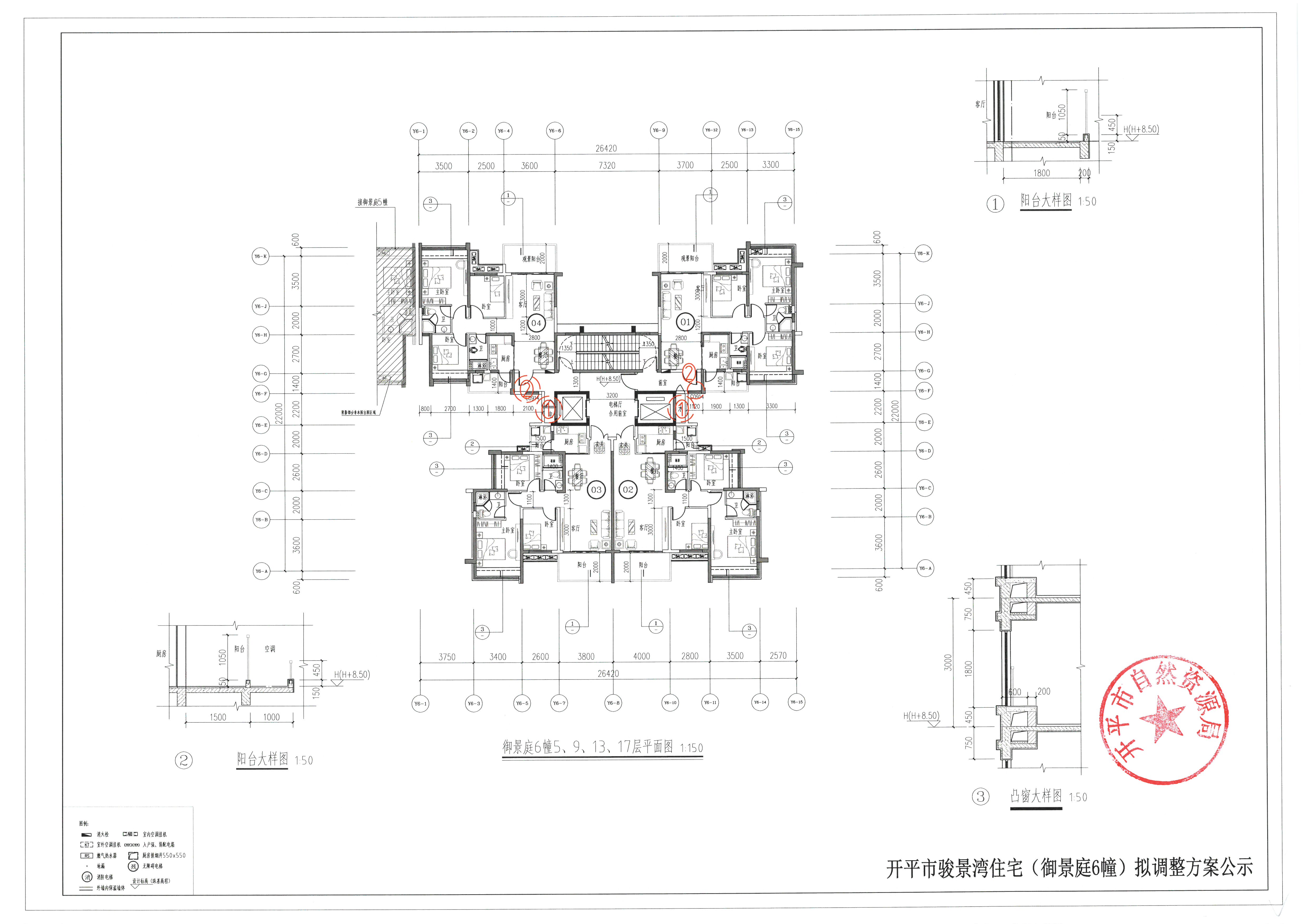
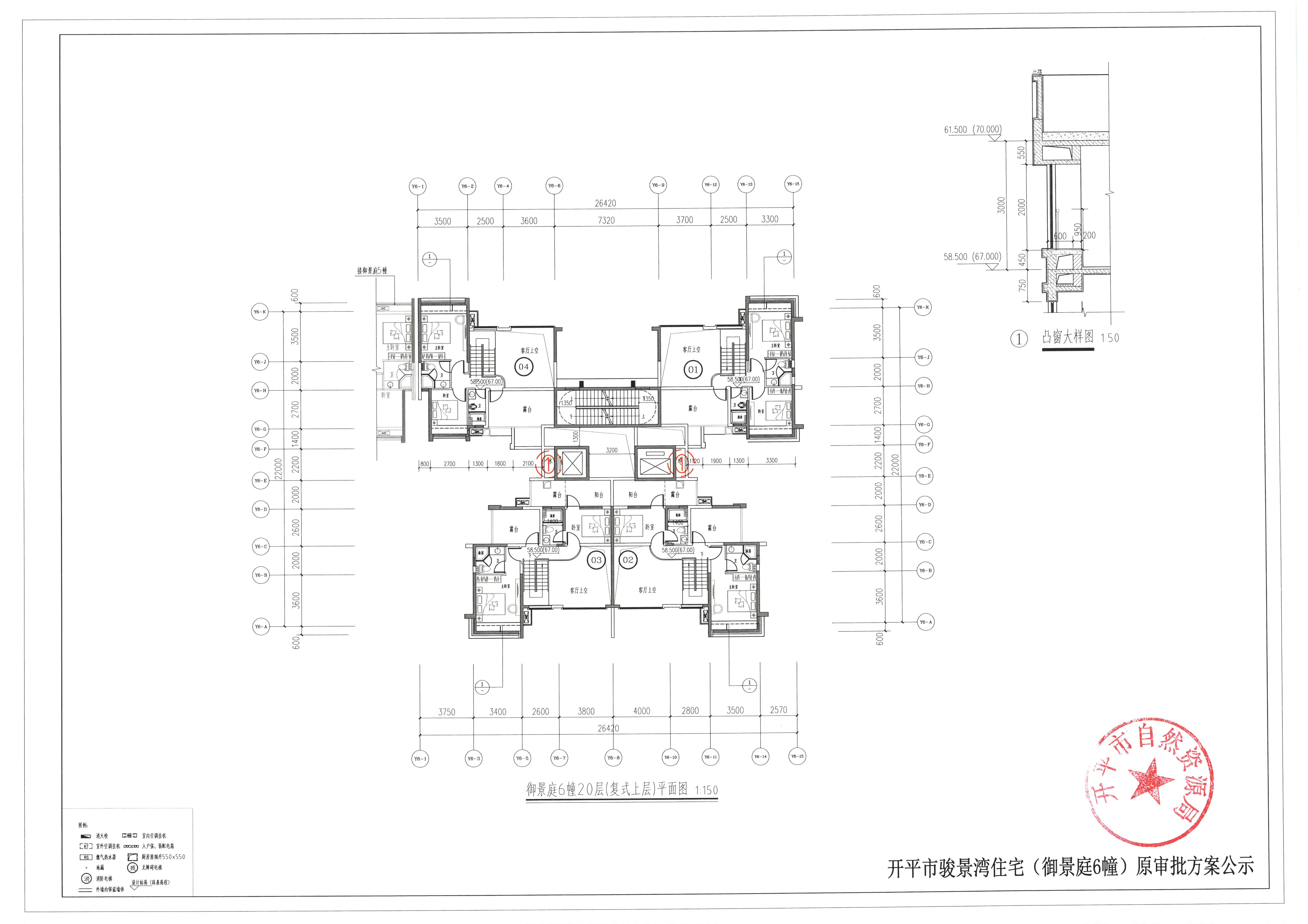
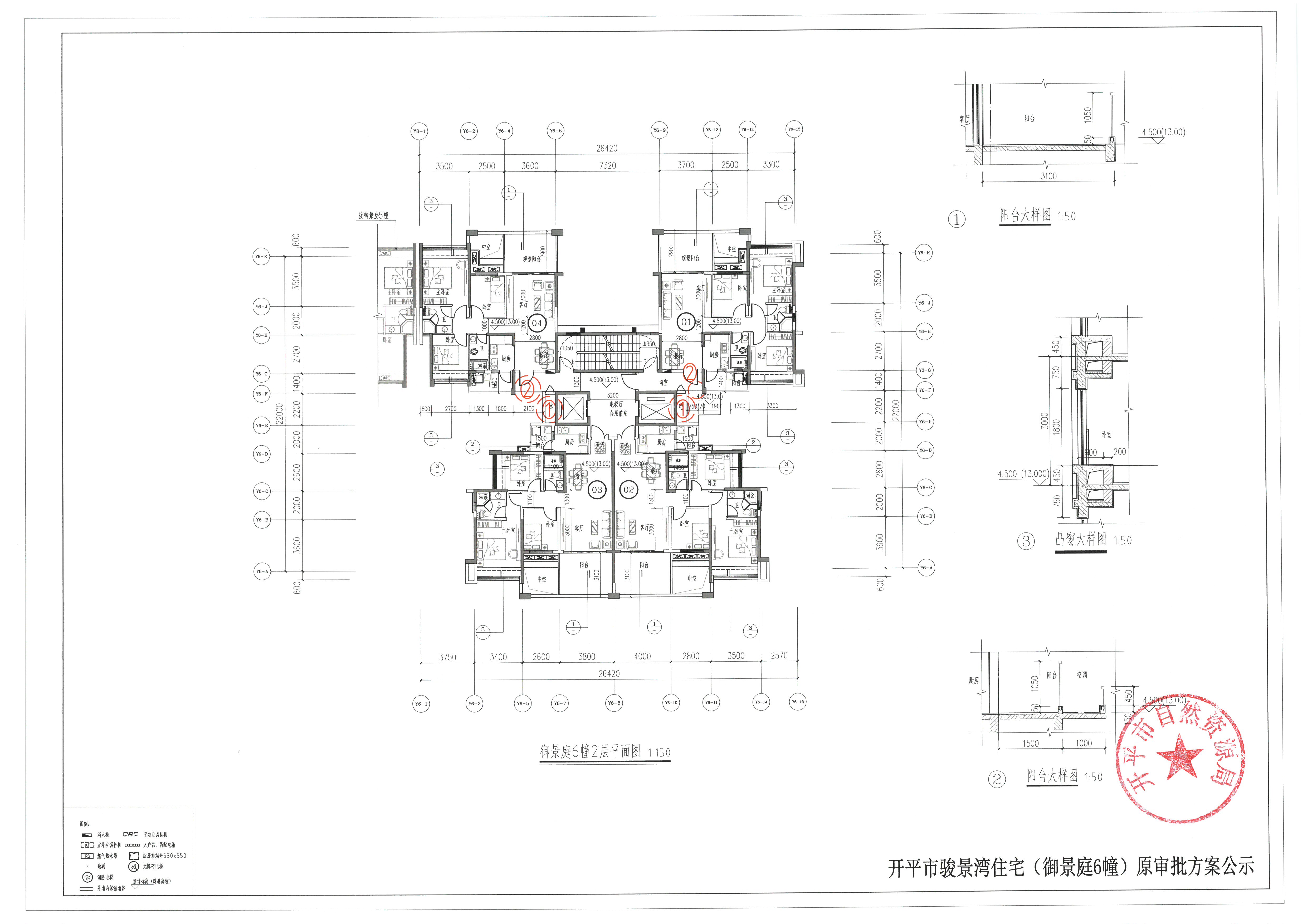
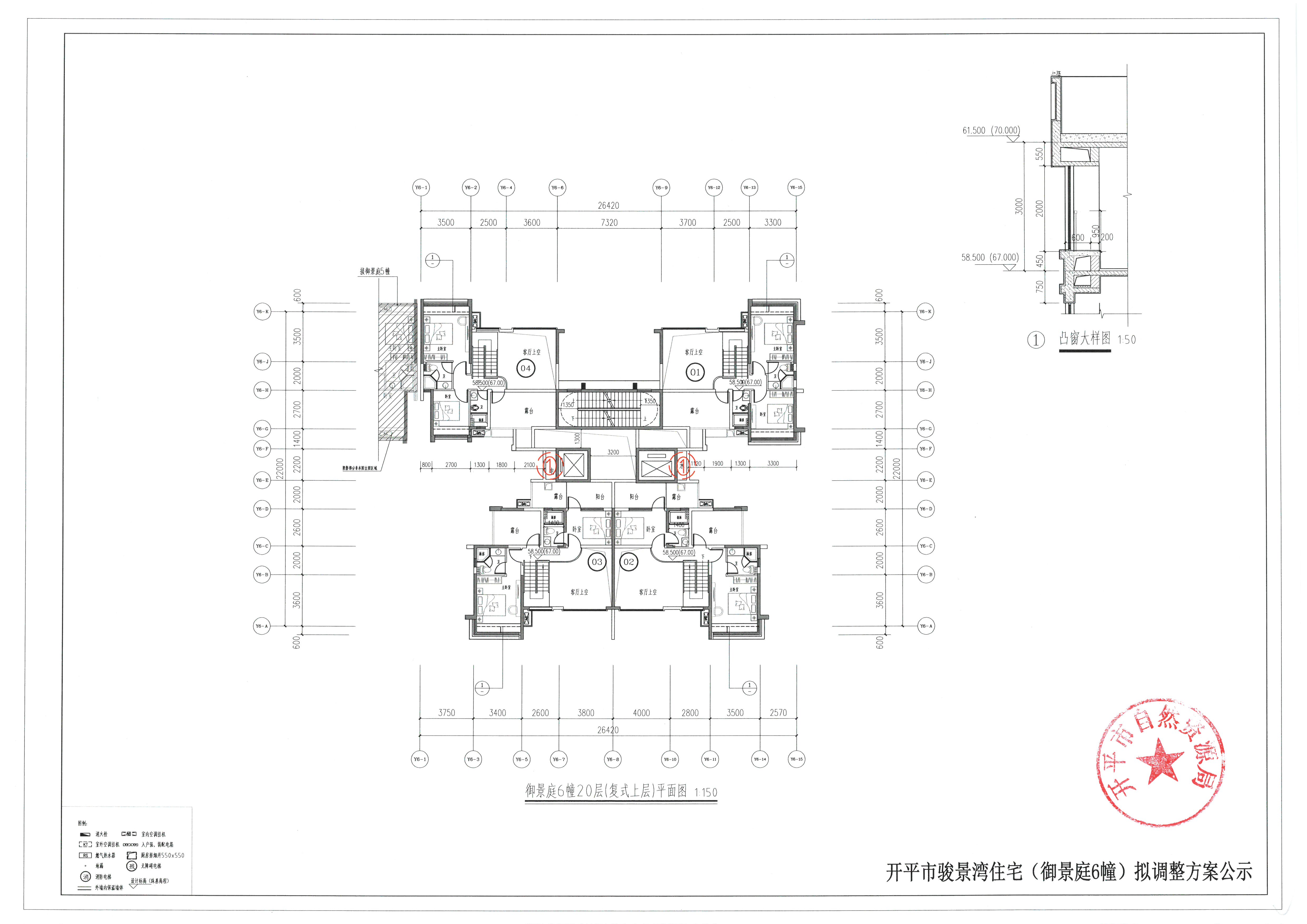
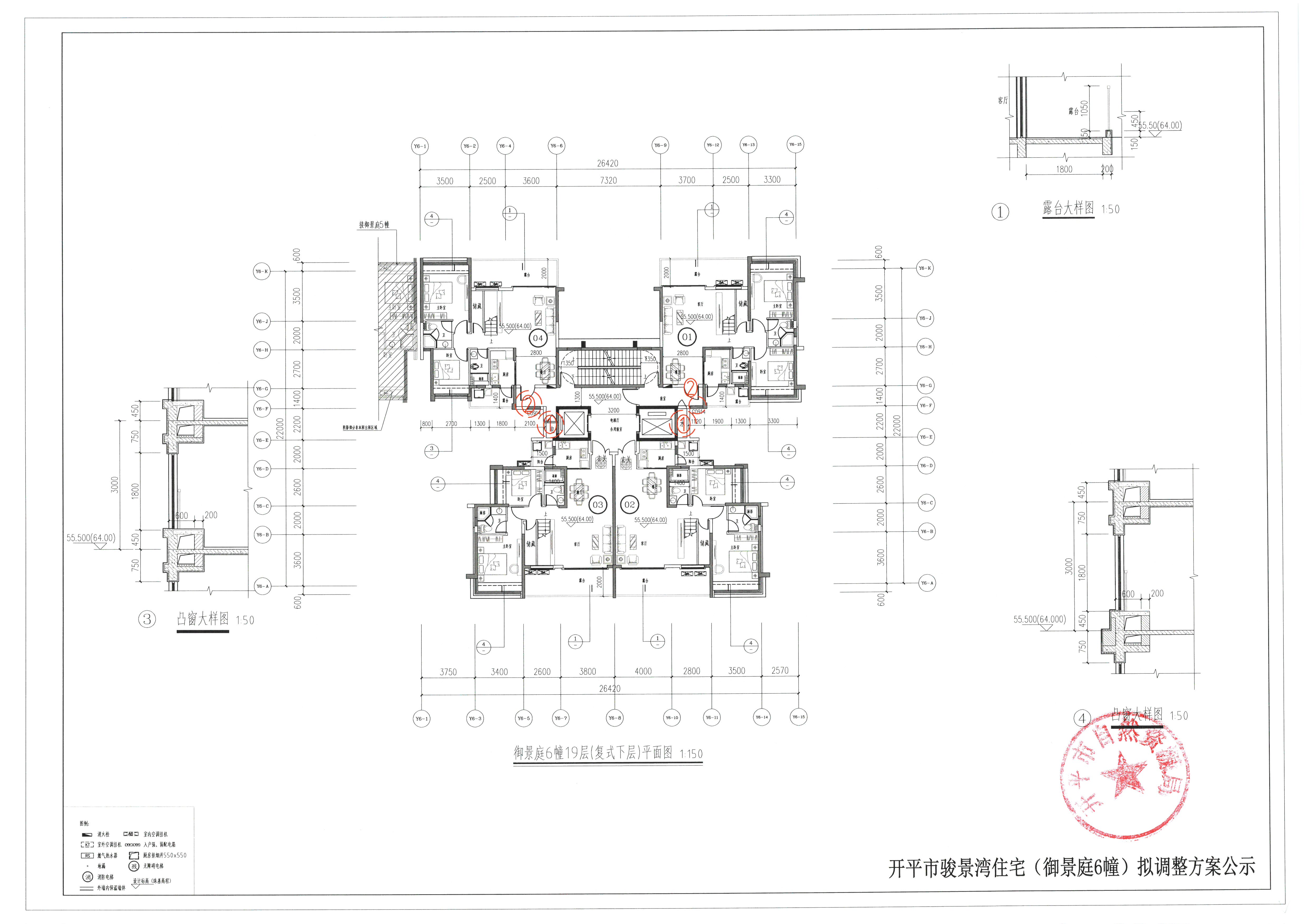
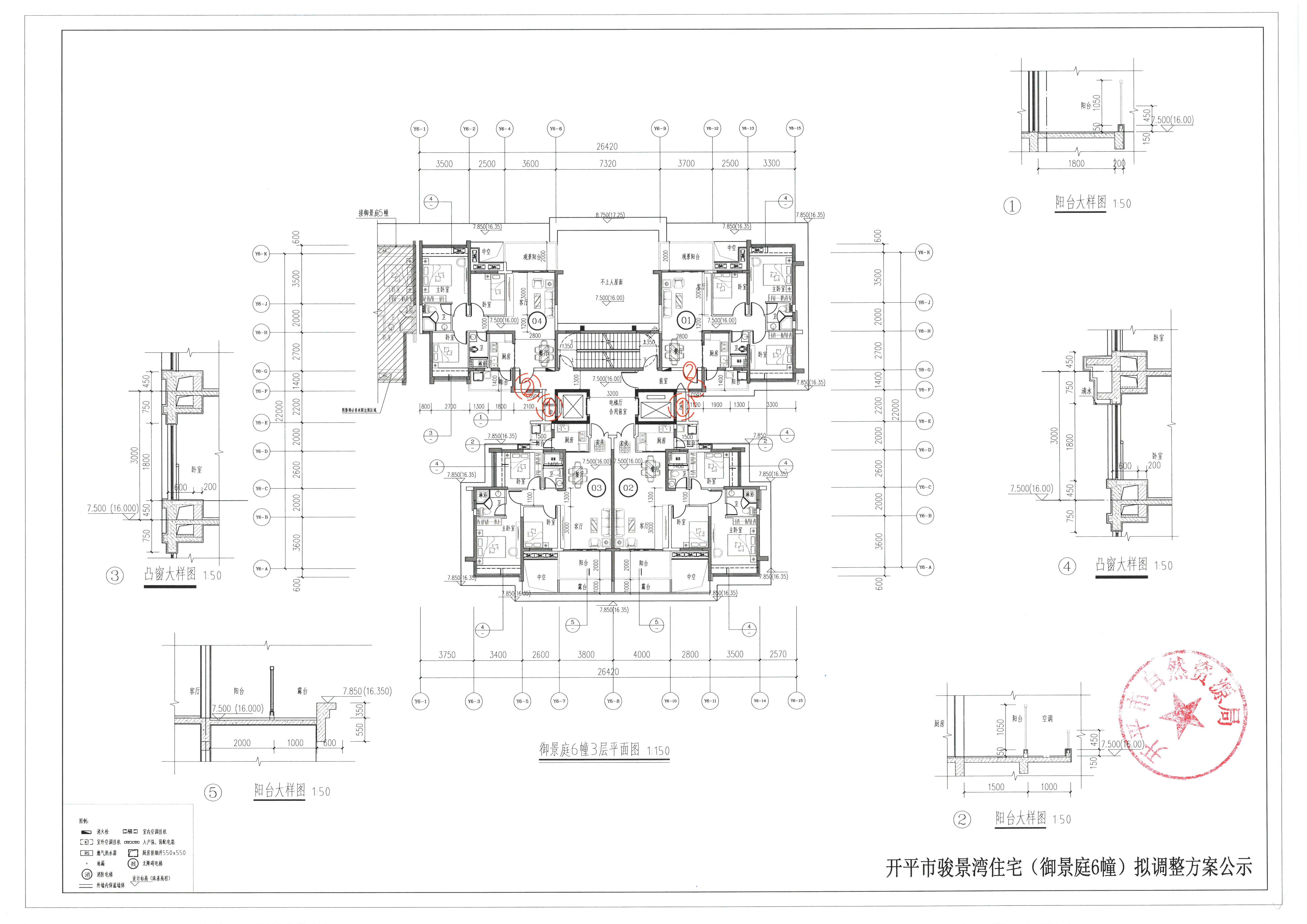
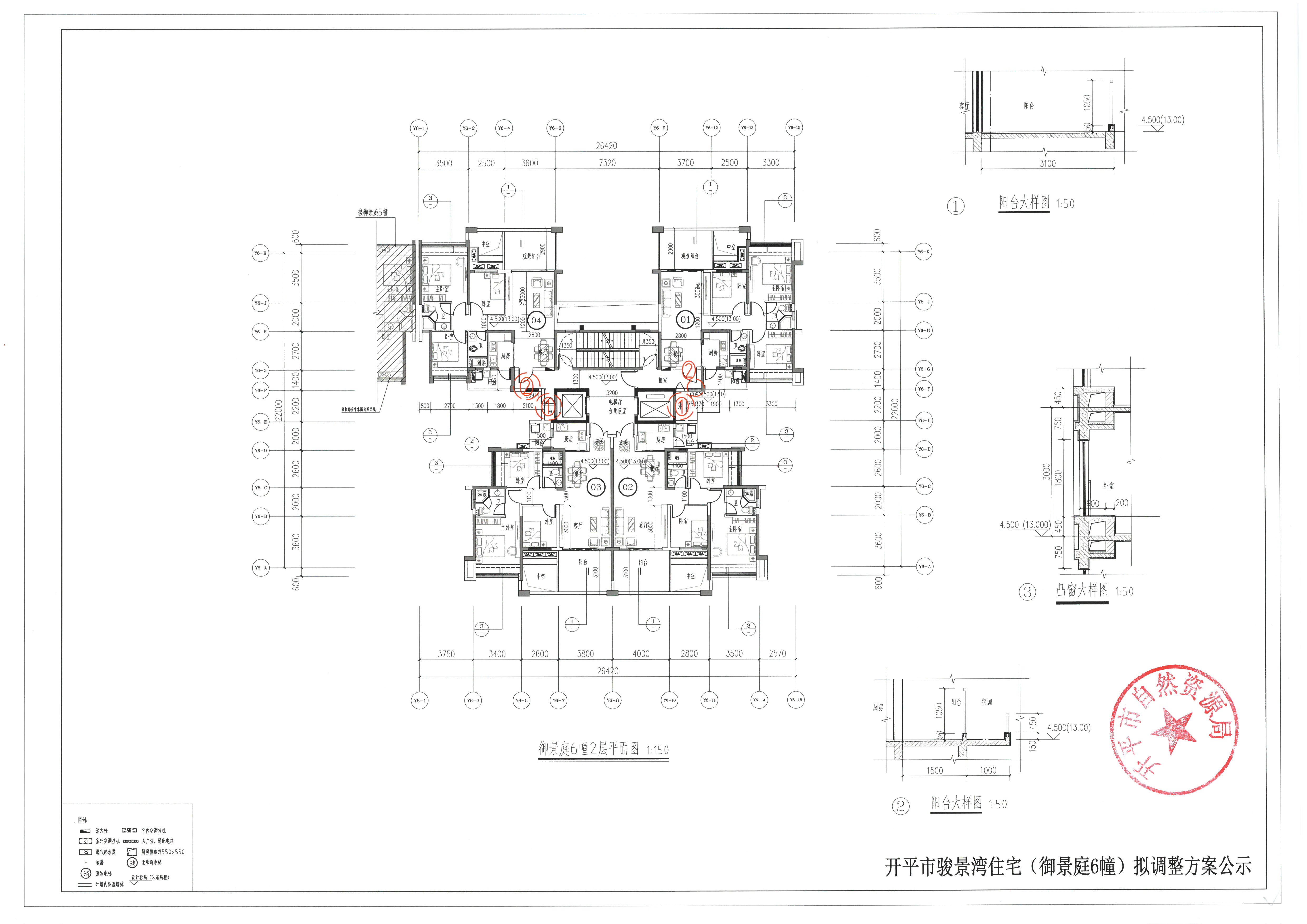
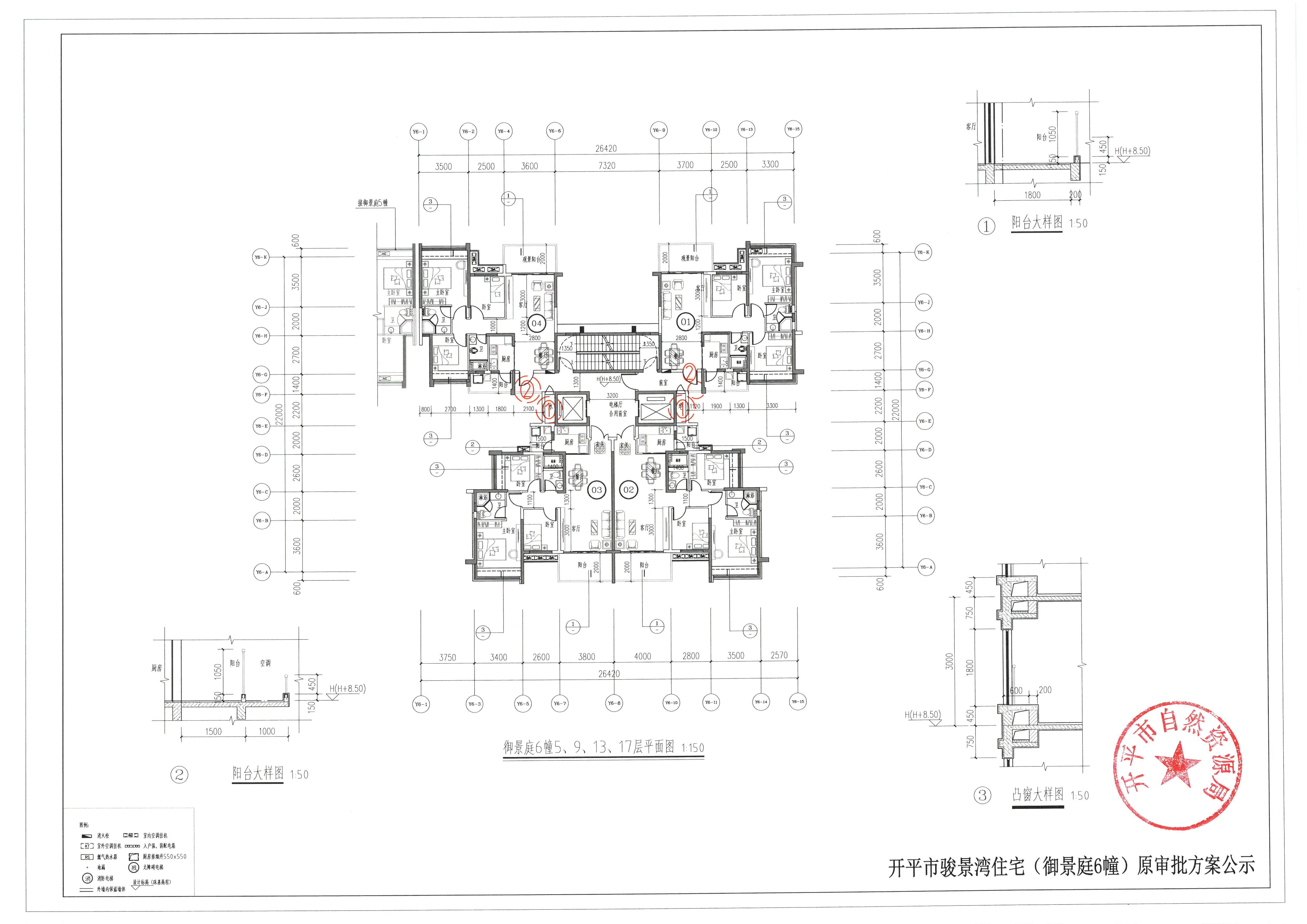
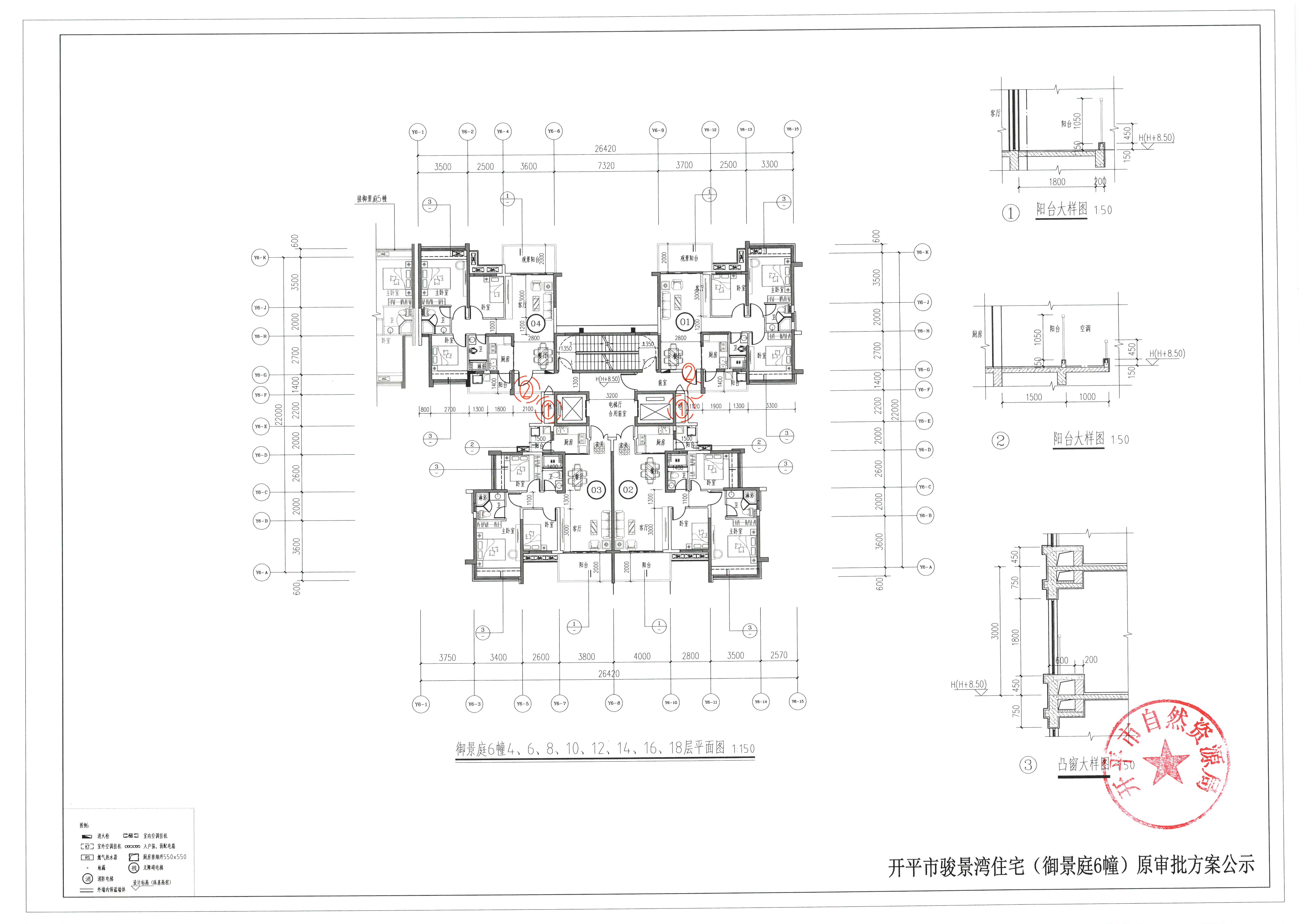
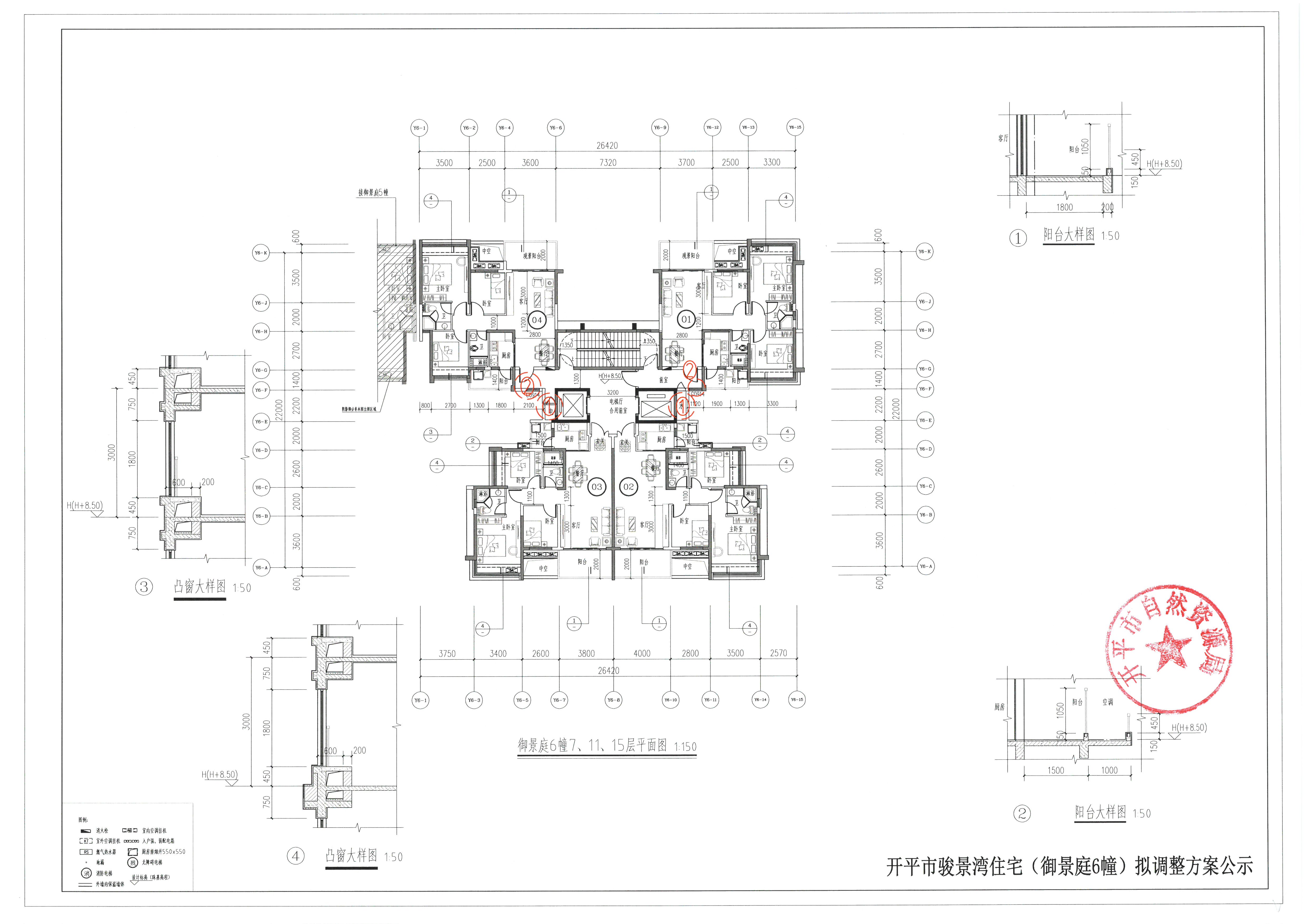
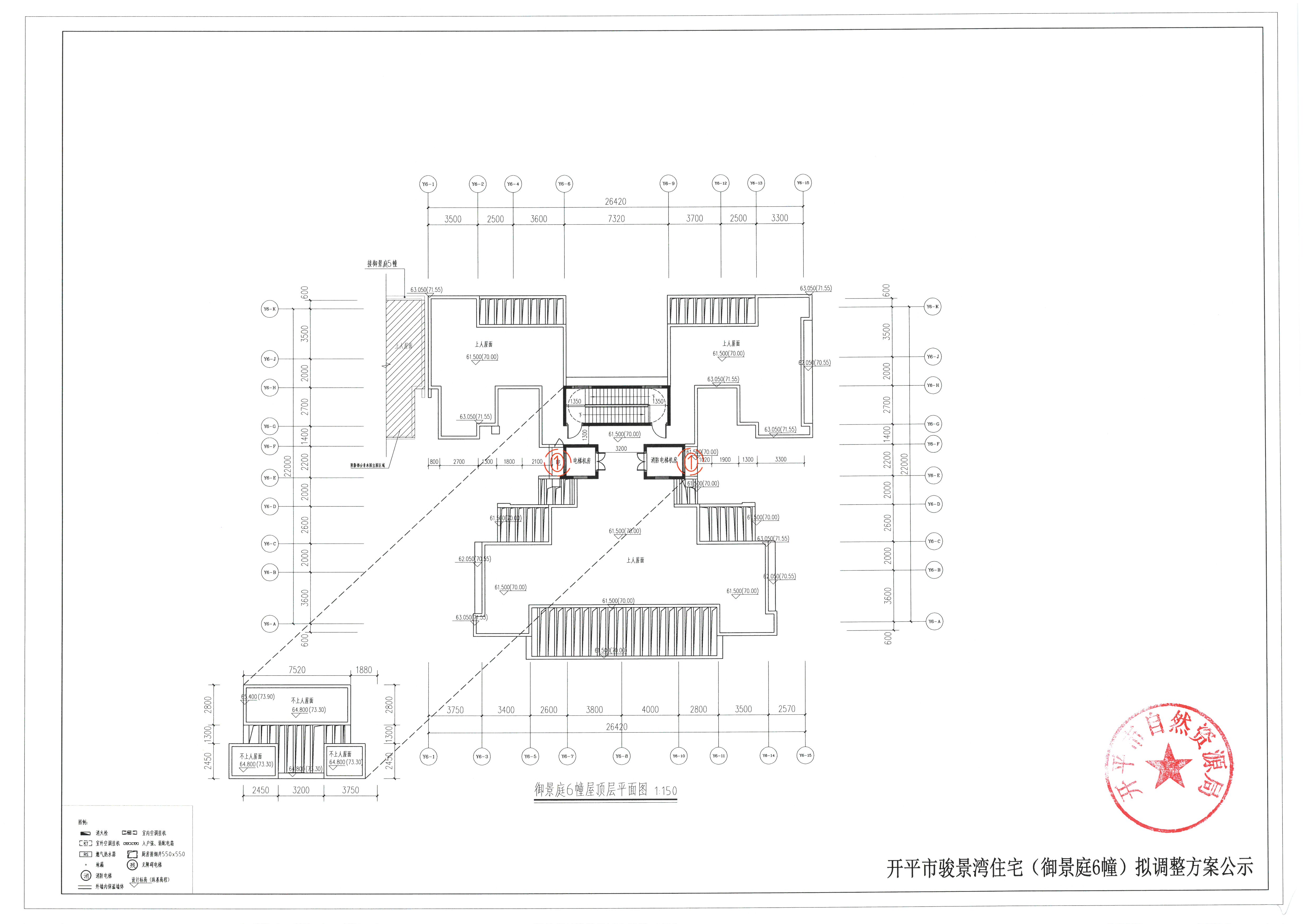
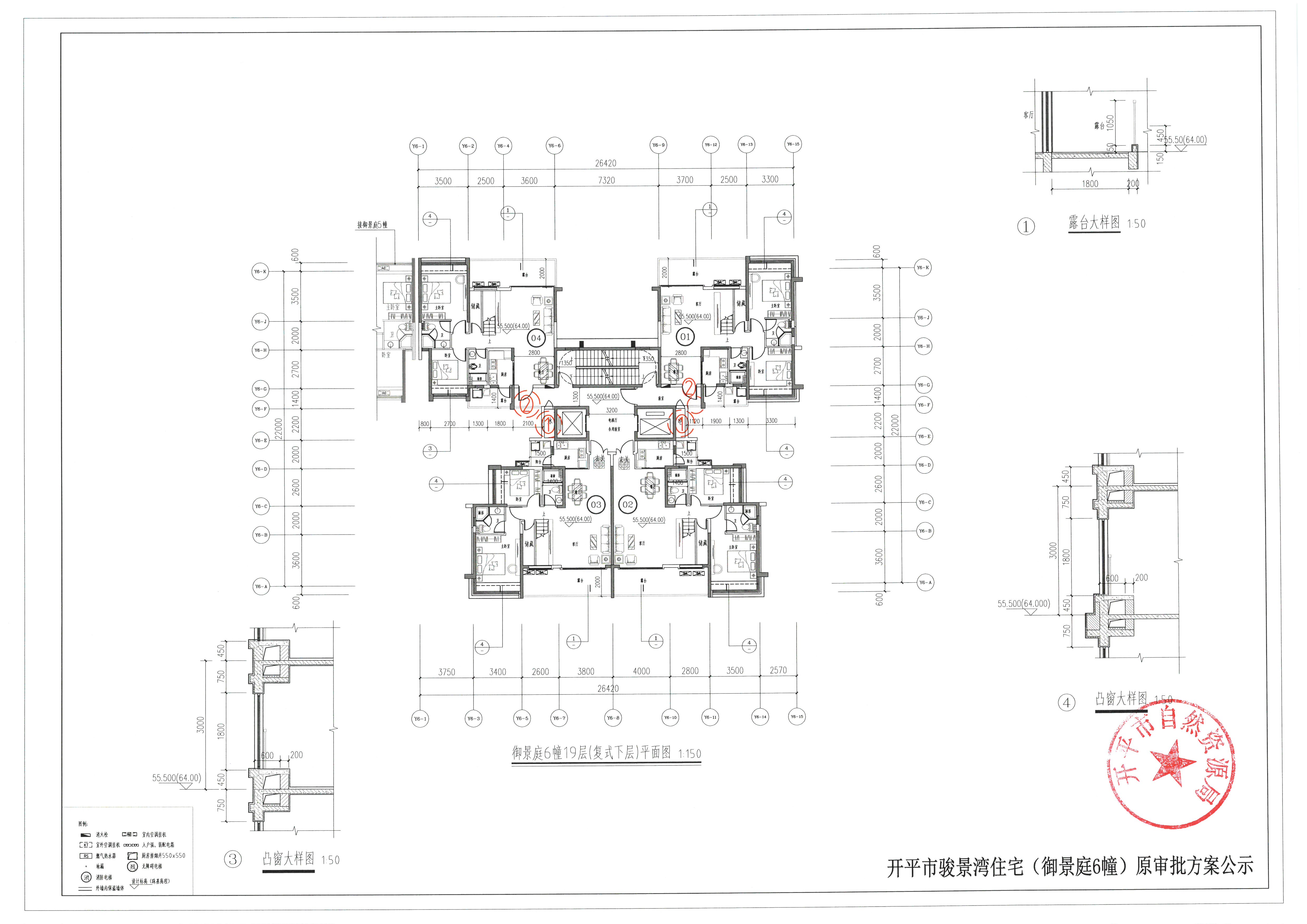
关于开平市原氮肥厂B地块开平市骏景湾海岸住宅小区住宅(御景庭6幢)建筑设计报建图调整的公示
发布日期:2020-01-09 11:00
来源:本网
打印
【字体:

SKM_C22620010909550_0003.jpgSKM_C22620010909480_0014.jpgSKM_C22620010909480_0013.jpgSKM_C22620010909480_0012.jpgSKM_C22620010909480_0011.jpgSKM_C22620010909480_0010.jpgSKM_C22620010909480_0009.jpgSKM_C22620010909480_0008.jpgSKM_C22620010909480_0007.jpgSKM_C22620010909480_0006.jpgSKM_C22620010909480_0005.jpgSKM_C22620010909480_0004.jpgSKM_C22620010909480_0001.jpgSKM_C22620010909460_0014.jpgSKM_C22620010909480_0002.jpgSKM_C22620010909480_0003.jpgSKM_C22620010909460_0013.jpgSKM_C22620010909460_0012.jpgSKM_C22620010909460_0011.jpgSKM_C22620010909460_0010.jpgSKM_C22620010909460_0009.jpgSKM_C22620010909460_0008.jpgSKM_C22620010909460_0007.jpgSKM_C22620010909460_0006.jpgSKM_C22620010909460_0005.jpgSKM_C22620010909460_0004.jpgSKM_C22620010909460_0003.jpgSKM_C22620010909460_0002.jpgSKM_C22620010909460_0001.jpg

相关附件:

 
联系我们 网站帮助 网站地图 服务申明
 版权所有:开平市人民政府    主办:开平市人民政府办公室 
备案编号: 粤ICP备05079694号  网站标识码:4407830003  粤公网安备; 44078302000116
开平发布政务微博
开平发布政务微信